Contact Us

If you’d like to connect, collaborate, or just ask something, get in touch via the below details - or complete the fields adjacent.

89 Islington Street
Collingwood 3066

  • Building Area

    13,600sqm NSA
  • Number of Dwellings

    82
  • Location

    Wurundjeri Woi Wurrung / Camberwell
  • Type

    Luxury dwellings

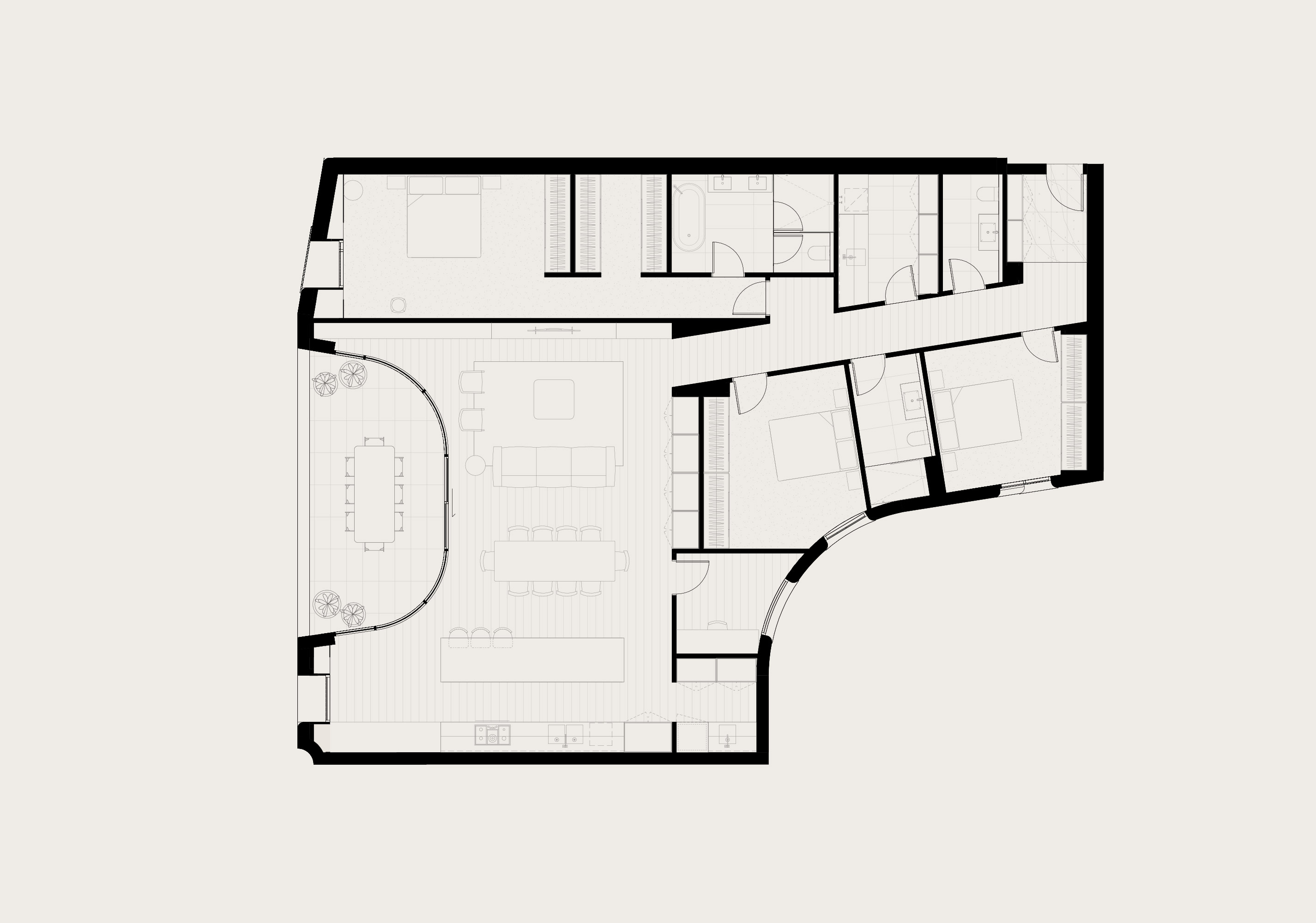
Located in the eastern suburbs of Melbourne, this will be a collection of the finest, highly crafted dwellings. Large, highly bespoke homes that connect to generous outdoor spaces create a wonderful terraced community. Shifting and sliding in opposing directions, the configuration of these homes further promote zones for landscaping and a kind of hillside typology. Privacy is ensured through thoughtfully considered layouts, generous planting, and large floor plans which minimise multiple units per level.

 

Terrace Camberwell

More Projects

Copyright © 2025 TWA | All Rights Reserved.